Сдам торговый центр, 880 м²

ул Херсонская, д. 23

1 320 000 руб.

?

$ 1 086

€ 979

1 500 руб./м²


880 м²

2/6 этажей

Код объекта

129459

Предложение доступно для субагентов, авторизуйтесь

Сдам Торговый центр, 880 м²

Код объекта: 129459.
Тип объекта: Торговый центр.
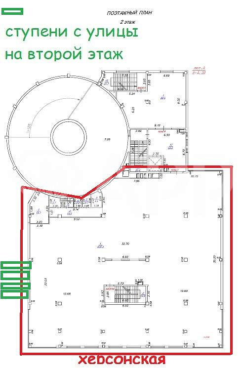
Площадь: 880 м².
Этаж / Этажность: 2 / 6.

Описание и характеристики

Сдам торговый центр, 880 м²
От собственника. Без комиссии.
- Торговый  центр, в самом центре города
- Центральные коммуникации
- Отопление
- Возможно деление площади, желаемая от 200  м2
- Вход с ул. Херсонская, будет сделана лестница с площадки где Пятерочка и Альфа банк, на второй этаж
- Ремонт за свой счет, условия обсуждаются
- Оплата первый и последний месяц
- Торговля, развлечения, услуги, спорт зал, фитнес, детский центр
- Видео могу скинуть по запросу
От собственника. Без комиссии.

По всем вопросам можете обращаться к вашему персональному менеджеру:
Александр Логачев - консультант по коммерческой недвижимости.
Большая база коммерческой недвижимости.
От собственника. Без комиссии .
"Агентство регионального развития"
Коммерческая недвижимость Геленджика и Новороссийска.
От собственника. Без комиссии.
Подписывайтесь на наш профиль, чтобы узнавать о новых локациях первыми!

Перейти в карточку объекта в CRM: 129459.

АРР Новороссийск

+7 988 770-91-00

или оставьте ваш номер, и я перезвоню в течение 30 минут

Отправляя заявку вы соглашаетесь на обработку персональных данных

1 320 000 руб.

?

$ 16 990

€ 14 473

1 500 руб./м²


880 м²

2/6 этажей

Код объекта

129459

Предложение доступно для субагентов, авторизуйтесь

АРР Новороссийск

+7 988 770-91-00

или оставьте ваш номер, и я перезвоню в течение 30 минут

Отправляя заявку вы соглашаетесь на обработку персональных данных

Похожие объявления

Посмотреть все похожие объявления
1/20
Код объекта: 392333.
Тип объекта: Торговый центр.
Площадь: 880 м².
Этаж / Этажность: 3 / 6.
1/20
Код объекта: 392333.
Тип объекта: Торговый центр.
Площадь: 880 м².
Этаж / Этажность: 3 / 6.
1/6
Код объекта: 219371.
Тип объекта: Складское помещение.
Площадь: 135 м².
Этаж / Этажность: 1 / 1.
1/5
Код объекта: 240489.
Тип объекта: Торговое помещение.
Площадь: 44 м².
Этаж / Этажность: 1 / 1.
1/4
Код объекта: 240799.
Тип объекта: Торговое помещение.
Площадь: 22 м².
Этаж / Этажность: 1 / 1.
1/6
Код объекта: 241774.
Тип объекта: Отдельно стоящее здание.
Площадь: 450 м².
Этаж / Этажность: 1 / 1.
1/10
Код объекта: 254323.
Тип объекта: Складское помещение.
Площадь: 3557.9 м².
Этаж / Этажность: 2 / 2.

Не хочу искать, перезвоните мне!

Оставьте номер телефона, наш специалист свяжется с вами и поможет с подбором недвижимости!