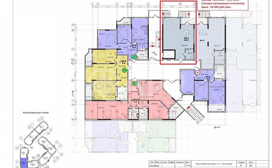
Продам торговое помещение, 50,5 м²

ул Туристическая, д. 3, корп. 2

15 000 000 руб.

?

$ 1 086

€ 979

297 030 руб./м²


50.5 м²

1/9 этажей

Код объекта

117669

Предложение доступно для субагентов, авторизуйтесь

Продам Торговое помещение, 50,5 м²

Код объекта: 117669.
Тип объекта: Торговое помещение.
Площадь: 50.5 м².
Этаж / Этажность: 1 / 9.

Описание и характеристики

Продам помещение свободного назначения, 50,5 кв.м.
От собственника. Без комиссии.
- Развитый район
- Рядом строится комплекс винный город  
- Арендатор Сдек
- Центральные коммуникации
- Отопление, от газового котла
- Сплит система
- Электричество 15 кВт
- С/у, душ в помещение
- Вход с улицы
- Есть вход из подъезда
- Можно переоборудовать под апартаменты, будет пользоваться спросом.
От собственника. Без комиссии.

По всем вопросам можете обращаться к вашему персональному менеджеру: Александр Логачев - консультант по коммерческой недвижимости. Большая база коммерческой недвижимости. От собственника. Без комиссии . "Агентство регионального развития" Коммерческая недвижимость Геленджика и Новороссийска. От собственника. Без комиссии.
Помощь с оформлением ипотеки

Подписывайтесь на наш профиль, чтобы узнавать о новых локациях первыми!

Перейти в карточку объекта в CRM: 117669.

АРР Новороссийск

+7 988 770-91-00

или оставьте ваш номер, и я перезвоню в течение 30 минут

Отправляя заявку вы соглашаетесь на обработку персональных данных

15 000 000 руб.

?

$ 187 596

€ 161 844

297 030 руб./м²


50.5 м²

1/9 этажей

Код объекта

117669

Предложение доступно для субагентов, авторизуйтесь

АРР Новороссийск

+7 988 770-91-00

или оставьте ваш номер, и я перезвоню в течение 30 минут

Отправляя заявку вы соглашаетесь на обработку персональных данных

Похожие объявления

Посмотреть все похожие объявления
1/12
Код объекта: 230090.
Тип объекта: Торговое помещение.
Площадь: 53.6 м².
Этаж / Этажность: -1 / 5.
1/12
Код объекта: 230090.
Тип объекта: Торговое помещение.
Площадь: 53.6 м².
Этаж / Этажность: -1 / 5.
1/6
Код объекта: 219371.
Тип объекта: Складское помещение.
Площадь: 135 м².
Этаж / Этажность: 1 / 1.
1/9
Код объекта: 222185.
Тип объекта: Апартаменты.
Площадь: 45 м².
Этаж / Этажность: 4 / 6.
1/4
Код объекта: 217226.
Тип объекта: Земельный участок.
Площадь: 335 .
1/5
Код объекта: 240489.
Тип объекта: Торговое помещение.
Площадь: 44 м².
Этаж / Этажность: 1 / 1.
1/4
Код объекта: 240799.
Тип объекта: Торговое помещение.
Площадь: 22 м².
Этаж / Этажность: 1 / 1.

Не хочу искать, перезвоните мне!

Оставьте номер телефона, наш специалист свяжется с вами и поможет с подбором недвижимости!