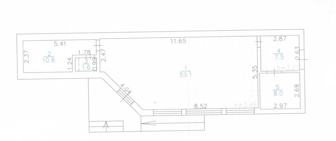
Продам помещение свободного назначения, 86,8 м²

ул Революционная, д. 3

65 000 000 руб.

?

$ 1 086

€ 979

748 848 руб./м²


86.8 м²

1/1 этажей

Код объекта

124573

Предложение доступно для субагентов, авторизуйтесь

Продам Помещение свободного назначения, 86,8 м²

Код объекта: 124573.
Тип объекта: Помещение свободного назначения.
Площадь: 86.8 м².
Этаж / Этажность: 1 / 1.

Описание и характеристики

Продам помещение свободного назначения, 86,8 м²
От собственника. Без комиссии.
- Первая береговая линия
- Рядом с ЗАГСом
- Электричество 15 квт
- Канализация центральная
- Вода привозная, но можно подключиться, договор действующий
- Есть запасной выход
- Сдано в аренду аптеке, договор до декабря 2027 года
- Земля в аренде
- Магазины, аптека, услуги, курортные товары, кафе, столовая, общепит
От собственника. Без комиссии.

По всем вопросам можете обращаться к вашему персональному менеджеру:
Александр Логачев - консультант по коммерческой недвижимости.
Большая база коммерческой недвижимости.
От собственника. Без комиссии .
"Агентство регионального развития"
Коммерческая недвижимость Геленджика и Новороссийска.
От собственника. Без комиссии.
Помощь с оформлением ипотеки

Подписывайтесь на наш профиль, чтобы узнавать о новых локациях первыми!

Перейти в карточку объекта в CRM: 124573.

АРР Новороссийск

+7 988 770-91-00

или оставьте ваш номер, и я перезвоню в течение 30 минут

Отправляя заявку вы соглашаетесь на обработку персональных данных

65 000 000 руб.

?

$ 802 754

€ 690 887

748 848 руб./м²


86.8 м²

1/1 этажей

Код объекта

124573

Предложение доступно для субагентов, авторизуйтесь

АРР Новороссийск

+7 988 770-91-00

или оставьте ваш номер, и я перезвоню в течение 30 минут

Отправляя заявку вы соглашаетесь на обработку персональных данных

Похожие объявления

Посмотреть все похожие объявления
1/2
Код объекта: 234705.
Тип объекта: Помещение свободного назначения.
Площадь: 86.4 м².
Этаж / Этажность: 1 / 5.
1/10
Код объекта: 228736.
Тип объекта: Помещение свободного назначения.
Площадь: 111.7 м².
Этаж / Этажность: 1 / 9.
1/16
Код объекта: 295425.
Тип объекта: Помещение свободного назначения.
Площадь: 107.9 м².
Этаж / Этажность: -1 / 11.
1/18
Код объекта: 339201.
Тип объекта: Помещение свободного назначения.
Площадь: 92.4 м².
Этаж / Этажность: 1 / 8.
1/18
Код объекта: 339202.
Тип объекта: Помещение свободного назначения.
Площадь: 87.9 м².
Этаж / Этажность: 1 / 8.
1/6
Код объекта: 219371.
Тип объекта: Складское помещение.
Площадь: 135 м².
Этаж / Этажность: 1 / 1.
1/9
Код объекта: 222185.
Тип объекта: Апартаменты.
Площадь: 45 м².
Этаж / Этажность: 4 / 6.
1/4
Код объекта: 217226.
Тип объекта: Земельный участок.
Площадь: 335 .
1/5
Код объекта: 240489.
Тип объекта: Торговое помещение.
Площадь: 44 м².
Этаж / Этажность: 1 / 1.
1/4
Код объекта: 240799.
Тип объекта: Торговое помещение.
Площадь: 22 м².
Этаж / Этажность: 1 / 1.

Не хочу искать, перезвоните мне!

Оставьте номер телефона, наш специалист свяжется с вами и поможет с подбором недвижимости!